【作者】瑞兒 【來源】金艾陶【發布日期】2016/12/23
小區:佛山禪城怡翠晉盛花園
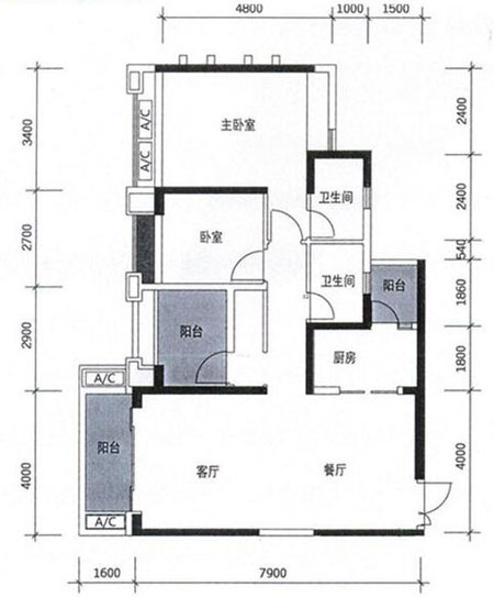
戶型:三房兩廳
設計風格:現代風格
應用瓷磚品牌:金艾陶瓷磚
本案設計理念:80、90后的年輕人,喜歡的是輕松,時尚的溫馨小窩,這是一款迎合年輕人喜好的設計!整體色調是淺色系,營造溫馨舒適的氛圍。幾何拼設的地面鋪貼,讓原本單色的地面多了些活力,給空間增加了些許的靈動。
佛山禪城怡翠晉盛花園7座03單元

陶瓷一線品牌金艾陶瓷磚KYS8089、KJP1812效果圖
陶瓷一線品牌金艾陶瓷磚KX45006及其配套產品效果圖
陶瓷一線品牌金艾陶瓷磚KYS8089、KJP1812效果圖
陶瓷一線品牌金艾陶瓷磚KYS8089、KJP1812效果圖
陶瓷一線品牌金艾陶瓷磚KPM36021及其配套產品效果圖
陶瓷一線品牌金艾陶瓷磚KJP1812效果圖